| 
                
                
                  | 九、原 理 图 | 
                
                
                
                   | 
                
                
                   | 
                
                
                  图1-1-5 XYZ-250G~XYZ-1000G 稀油站原理图  | 
                
                
                  |   | 
                
                
                  | 十、 外部接线图 | 
                
                
                  | 1、XYZ-6G~125G 稀油站电控箱外接端子接线图 | 
                
                
                   | 
                
                
                  | 2、XYZ-250G~1000G 稀油站电控箱外接端子接线图 | 
                
                
                   | 
                
                
                  | 十一、 电控柜、仪表盘 | 
                
                
                   | 
                
                
                  图1-1-6 XYZ-6G~XYZ-125G 稀油站电控柜外形图  | 
                
                
                  |   | 
                
                
                  | 标牌文字说明: | 
                
                
                  
                    
                      序  号  | 
                      标牌文字  | 
                      序  号  | 
                      标牌文字  | 
                     
                    
                      1  | 
                      测温指示  | 
                      11  | 
                      停止二号泵  | 
                     
                    
                      2  | 
                      一号泵工作  | 
                      12  | 
                      起动加热器  | 
                     
                    
                      3  | 
                      二号泵工作  | 
                      13  | 
                      停止加热器  | 
                     
                    
                      4  | 
                      加热器工作  | 
                      14  | 
                      试    响  | 
                     
                    
                      5  | 
                      压力过低  | 
                      15  | 
                      消除警报  | 
                     
                    
                      6  | 
                      油位过高  | 
                      16  | 
                      一号泵为主、二号泵备用  | 
                     
                    
                      7  | 
                      油位过低  | 
                      17  | 
                      单独起动一、二号泵  | 
                     
                    
                      8  | 
                      起动一号泵  | 
                      18  | 
                      二号泵为主、一号泵备用  | 
                     
                    
                      9  | 
                      停止一号泵  | 
                      19  | 
                      油泵选择  | 
                     
                    
                      10  | 
                      起动二号泵  | 
                      20  | 
                      测油点选择  | 
                     
                                      | 
                   | 
                
                
                  图1-1-7 XYZ-6G~XYZ-125G 稀油站仪表盘外形图  | 
                
                
                  |   | 
                
                
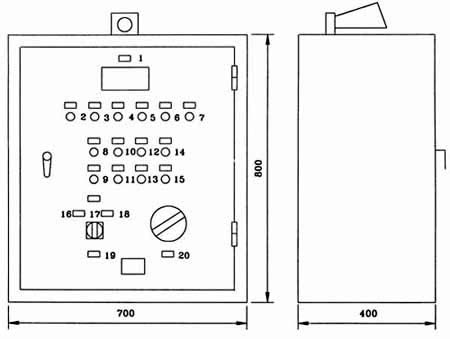
                  | XYZ-250G~XYZ-1000G 稀油站电控柜及仪表盘 | 
                
                
                   | 
                
                
                  图1-1-8 XYZ-250G~XYZ-1000G 稀油站电控柜外形图  | 
                
                
                  | 标牌文字说明: | 
                
                
                  
                    
                      序  号  | 
                      标牌文字  | 
                      序  号  | 
                      标牌文字  | 
                     
                    
                      1  | 
                      测温指示  | 
                      10  | 
                      起动二号泵  | 
                     
                    
                      2  | 
                      一号泵工作  | 
                      11  | 
                      停止二号泵  | 
                     
                    
                      3  | 
                      二号泵工作  | 
                      12  | 
                      试    响  | 
                     
                    
                      4  | 
                      油温过高  | 
                      13  | 
                      消除警报  | 
                     
                    
                      5  | 
                      压力过低  | 
                      14  | 
                      一号泵为主、二号泵备用  | 
                     
                    
                      6  | 
                      油位过高  | 
                      15  | 
                      单独起动一、二号泵  | 
                     
                    
                      7  | 
                      油位过低  | 
                      16  | 
                      二号泵为主、一号泵备用  | 
                     
                    
                      8  | 
                      起动一号泵  | 
                      17  | 
                      油泵选择  | 
                     
                    
                      9  | 
                      停止一号泵  | 
                      18  | 
                      测温点选择  | 
                     
                    
                    | 
                    | 
                
                
                  图1-1-9 XYZ-250G~XYZ-1000G 稀油站仪表盘外形图  | 
                
                
                  |   | 
                
                
                  | 十一、订货说明 | 
                
                
                   1、订货标记示例: 
                       如订购上述JB/ZQ/T4147-91标准的稀油站则作如下标记: 
                       例如:订购公称流量125L/min 的稀油站则标记为: 
                       XYZ-125G稀油站(JB/ZQ/T4147-91) 
                       若订购公称流量400L/min 但不带冷却器的稀油站 
                       XYZ-400A稀油站(JB/ZQ/T4147-91) 
                       注:“A”取代“G”为不带冷却器的稀油站。 
                     2、若换热器采用板式冷却器,请在订货合同中注明,外形图及地基尺寸需作相应改变。 
                     3、标准稀油站为成套供应,带电控柜及仪表盘,若不带电控柜或仪表盘,请在订货合同中说明:若要求PLC控制,也请说  
   明,并根据要求另行议价。 
 4、稀油站的润滑油牌号和粘度,过滤精度也需注明,若过滤精度高于0.08mm或对滤芯材质有要求的也应说明,价格相应 
   变化。 
 5、对稀油站有特殊要求的,应作非标订货,价格协商确定。 | 
                
                
                  |   | 
                
                
                  |   | 
                
                
                  |   | 
                   | 
                
                
                  |   | 
  |