在线咨询1
在线咨询2
 
干油润滑部分
 
稀油润滑部分
   +稀油站
   +稀油润滑元件
 
管件部分
   +管件
 
油气润滑部分
 
电气控制部分
 
液压产品
   +液压产品
 
 
R1902型电气控制箱(20MPa)
一、概述
  R1902 型电气控制箱,用于自动控制一套由U- ※※ AL 型环式电动润滑泵与补脂泵组成的干油润滑系统,即在DEA-2L型电控箱的基础上,增加了补脂泵自动控制部分。能对系统中的供油点现实自动供油,供油完成后,自动停止。油箱中液位低于一定限度时,补脂泵自动启动,注满油后,自动停止。
  控制箱能发出“供油时间延长”、“加油泵超载”、“超负荷运转”等故障信号,箱内设有一组外部接点,可向主机或主控室发送系统运转状况(停止、运转、故障)信号。

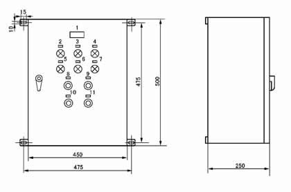
二、外形尺寸
三、标牌符号及文字
序号
符号
标牌文字
序号
符号
标牌文字
1
HL1
电源
6
HL4
油箱液位低
2
HL2
干油站工作
7
SB1
任意运转
3
HL3
加油泵工作
8
SB2
故障复位
4
HL4
供油时间延长
9
SB3
加油泵启动
5
HL5
超负载运转
10
SB4
加油泵停止
四、R1902型电气控制箱接线端子图
 
启东市宏南冶金机械有限公司 版权所有 Copyright © 2010 All Rights Reserved
电话:0513-83777604 83777519 传真:0513-83771878 网址: http://www.jshnjx.com
E-mail:honayj@163.com 13921652338@163.com